EDGE DETAILS
GLASS OPTIONS
TEMPERED GLASS
INSULATED GLASS
FROSTED
REEDED 1/2″ FLUTES
OBSUCRE P516
1/4″ WHITE LAMINATED
CD SWIRL
WINDOW OPTIONS
NOTE : 28 inch Top Section only for Shores Collection

Standard heights include 6’6″, 7’0″, 7’6″, 8’0″ – other heights can be custom built upon request
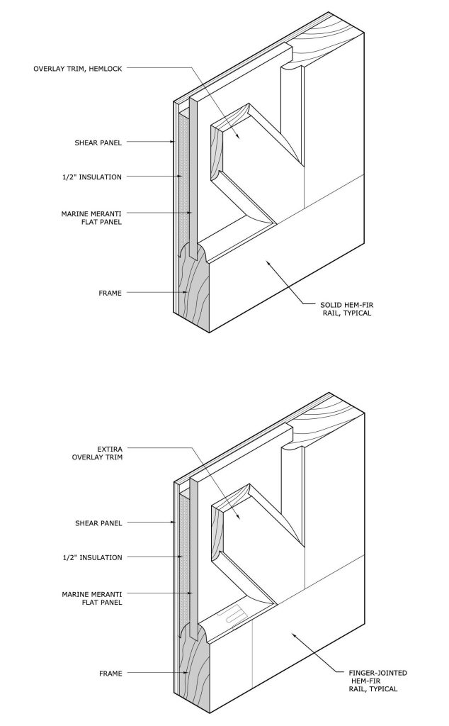
STAIN GRADE:
- 1 3/8″ Deep Plow rail and stile construction
- Clear hem fir rails and stiles.
- Exterior grade birch panels with or without v-grooves
- Double center stiles with v-groove
- Tru – Divided Lites (Thru and Thru arch optional) (Window caulking optional)
- 1/2″ polystyrene insulation
- Exterior stain grade luan back
- Pre drilled and pilot drilled
PAINT GRADE:

- 1 3/8″ Deep Plow rail and stile construction
- Finger jointed hem fir rails and stiles. Clear rails optional
- Exterior grade birch panels with or without v-grooves
- Double center stiles with v-groove
- Tru – Divided Lites (Thru and Thru arch optional) (Window caulking optional)
- 1/2″ polystyrene insulation
- Exterior paint grade luan back
- Primed
- Pre drilled and pilot drilled
SPECIAL REQUEST CAN BE QUOTED
Shores Collection NOT available for WUI Fire Rating
Full Custom Series only available for WUI Fire Rating